| Bauherr | Stadt Dortmund |
| Projektlaufzeit | 2019 |
| Status | Abgeschlossen |
| Leistungen | Machbarkeitsstudie |
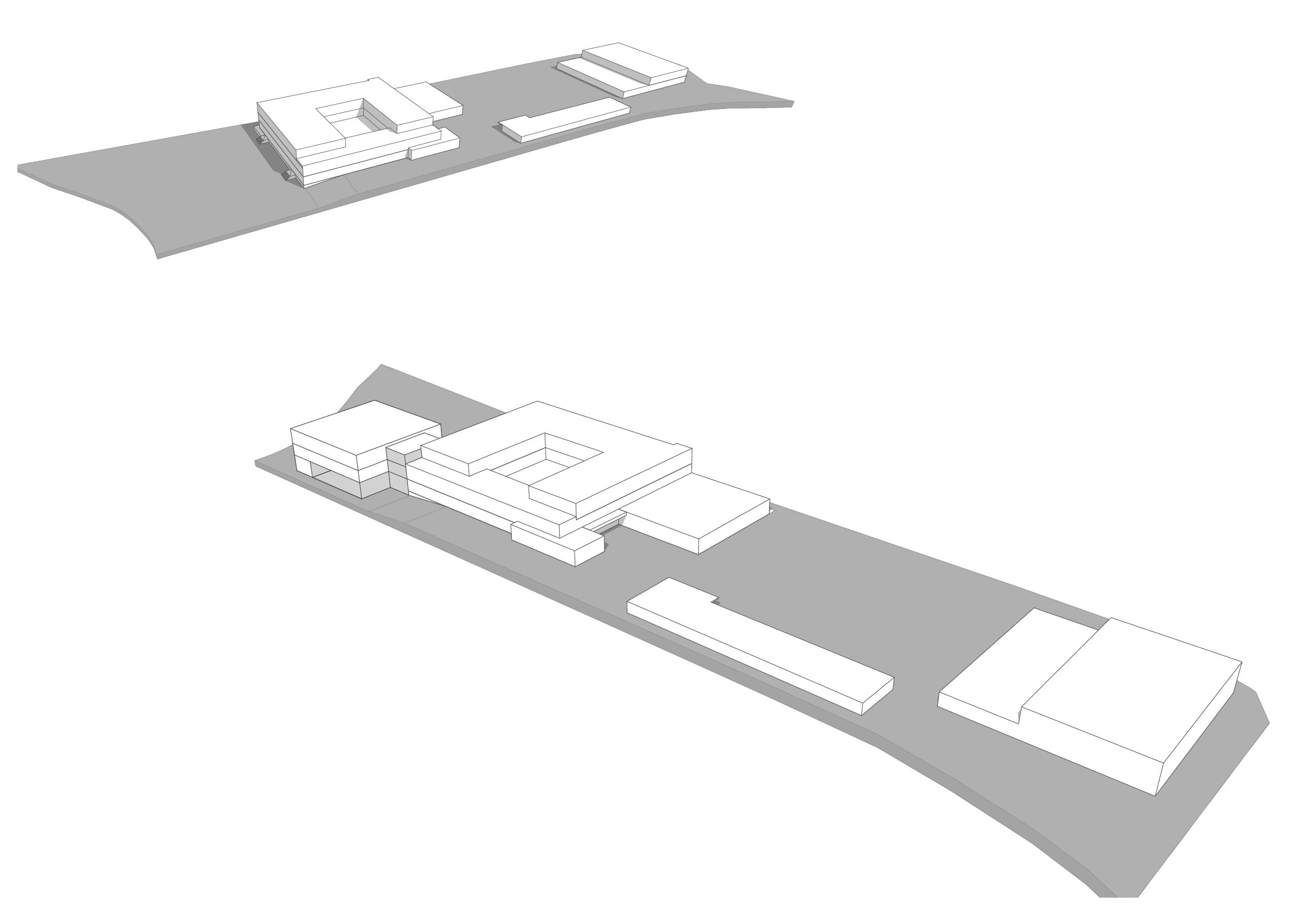
Städtebaulich wird durch den Kubus ein Akzent an der Schweizer Allee gesetzt und bildet, von Norden kommend, den Auftakt in das Gebäudeensemble. Eine ggf. gewünschte Erhöhung der Geschosszahl auf IV ist aus städtebaulicher Sicht zu vertreten und scheint auch aus baurechtlicher Sicht realisierbar. Der Eingangsbereich der für die Nutzergruppe der Sek II sowie Lehrer/innen und Besucher geschaffen wird, bildet die „Neue Adresse“ der Schule. Das Selbstlernzentrum ist mit der Aufenthaltszone der Eingangshalle verknüpft und bildet mit der Sitzstufenanlage im Übergang zum Bestand eine angenehme räumliche Einheit. Aus der Eingangshalle werden die Außenanlagen, eigener Schulhofbereich der Sek II, erschlossen. Der vorhandene Haupteingang des Bestandsgebäudes ist der Sek I vorbehalten und ist die Schnittstelle für die Pausen. Die Schülerströme werden durch den Erweiterungsbau mit den separaten Zugangsbereichen entzerrt. Für das alltägliche Schulgeschehen bietet diese Variante mit direkter Anbindung kurze Wege für alle Nutzer und eine räumliche Ergänzung, die in den Bestand über den Verbindungsbau mit Luftraum eingebunden wird. Auch moderne pädagogische Lernkonzepte mit Lernbereichen in den Verkehrsflächen lassen sich gut umsetzen und können, im Falle einer z.B. anderen Nutzergruppe (Sek I), die Bildung von Jahrgangsclustern, mit erweiterten Nebenräumen für die Binnendifferenzierung, fördern.


