| Bauherr | Stadt Fröndenberg/Ruhr |
| Projektlaufzeit | 2018 |
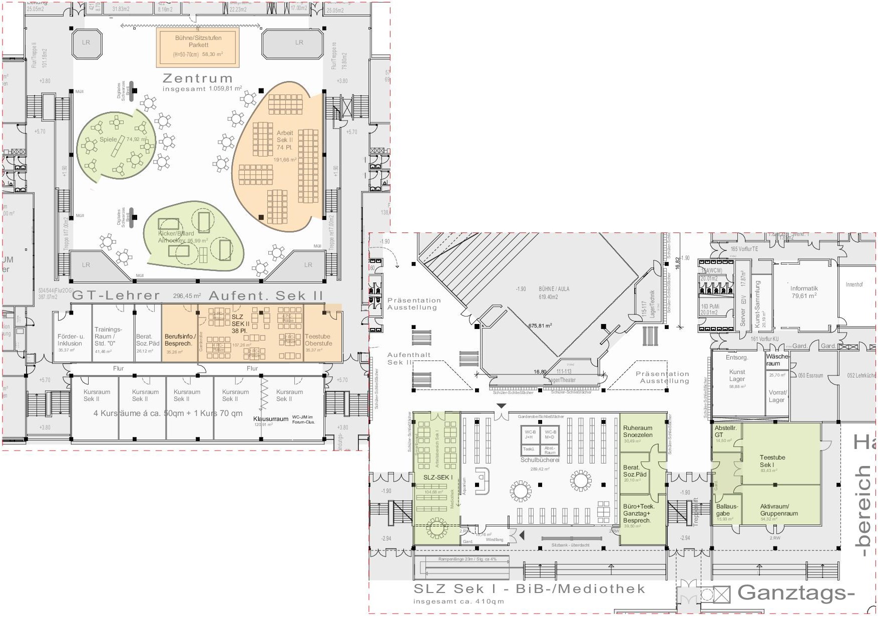
Die Gesamtschule Fröndenberg GSF ist als Gesamtschule mit gymnasialer Oberstufe die einzige weiterführende Schule in der Stadt Fröndenberg. Die Schule wird von insgesamt ca. 1.400 Schüler/innen (SuS) besucht und ist ca. 6-zügige organisiert. Der Unterricht wird von ca. 140 Lehrer/innen geleistet sowie von Sozialpädagogen zur Gestaltung der Ganztagsbetreuung sowie Inklusion und Förderung. Des Weiteren wird die Schülerbücherei von einer Bibliothekarin geleitet und ist als Biblio- und Mediothek ein wichtiger Bestandteil des Schullebens für alle Altersstufen.
Im Prozess der Phase Null sollen die wichtigen Kernbereiche für die Schule (Ganztag, Aufenthalt, Fachbereiche, Barrierefreiheit) in unterschiedlichen Workshops durch K+N Architekten mit den Nutzern erarbeitet werden. Nach der ersten Begehung des Gebäudes mit Schulleitungen, didaktischer Leitung und Bauverwaltung und dem Kennenlernen der genutzten Gebäudesubstanz, wird der Auftakt mit dem Titel „VON HIERAUS“ mit den Lehrer/innen über „ihre“ Räumlichkeiten im Gebäude und Wünsche an die Zukunft mit dem Ziel der Verortung der Fachbereiche und des jeweiligen Raumbedarfs erfasst. Es folgen mehrere Workshops mit den Schüler/innen und Sozialpädagogen sowie exteren Nutzern.
Abschließend wird nach Abstimmungsgesprächen, auch mit Brandschutz-Sachverständigen und Kämmerei, ein Raumkonzept verabschiedet und Ideen für das Zentrum dargestellt, als Basis für die nachfolgenden Sanierungs – und Umbauplanungen durch die Bauverwaltung.


