| Bauherr | Gebäudemanagement Wuppertal |
| Projektlaufzeit | 2020 - 2025 |
| Status | Abgeschlossen |
| VOF-Verfahren | 1. Rang |
| Leistungen | HOAI 1-8 |
| Baukosten | 10 000 000 EUR |
| BGF | 3 100 qm |
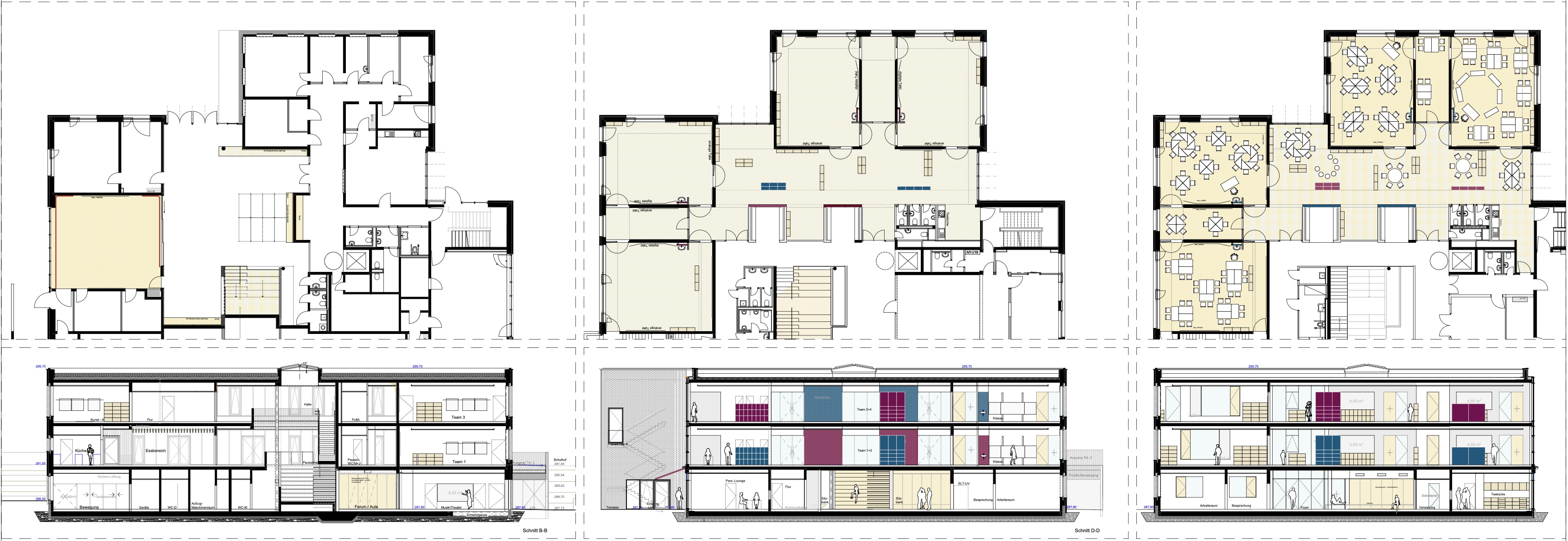
Der geplante Baukörper für den Ersatzneubau ist orthogonal, aus drei sich verschneidenden Volumen, entwickelt und wird mit dem dreigeschossigen Eingangskubus und Vorplatz auf die Straßenkreuzung Hainstraße / Am Bredtchen ausgerichtet.
Durch das Gefälle im Gelände des Baufeldes mit ca. drei Metern in Nord-Südrichtung wird ein Hanggeschoss entwickelt, welches die Durchwegung des Gebäudes vom Vorplatz an der Kreuzung bis zum Schulhof im Erdgeschoss über eine offene lichtdurchflutete dreigeschossige Halle ermöglicht.
Das Foyer für die Verwaltung und Besucher wird vom südlichen Vorplatz barrierefrei und vom öffentlichen Raum aus erschlossen. Die Schüler:innen betreten das Gebäude direkt vom erdgeschossig gelegenen Schulhof auf der Nordseite in die hier angeordnete Eingangshalle. Aus der Verbindung dieser beiden Ebenen über eine Treppen- und Sitzstufenanlage wird das Foyer mit der Pausenhalle zur Aula / Forum und Versammlungsstätte.
Im Erd- und Obergeschoss werden jeweils zwei Jahrgangsstufen auf einer Ebene zu einem Cluster zusammengefasst. Diese Gliederung ermöglicht das Zusammenschalten von zwei Jahrgängen in einem gemeinsamen Teambereich und das jahrgangsübergreifende Lernen. Ein Cluster erschließt aus der gemeinsamen Mitte (Teambereich) vier Klassenräume, zwei Differenzierungsräume und einen kleinen Teambereich mit Teeküche sowie WC-Anlagen.






